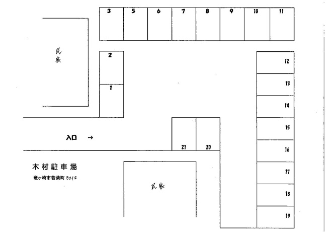
木村駐車場
賃料
4,000
円
種別
駐車場
住所
茨城県龍ケ崎市若柴町3212
交通
龍ケ崎市駅
徒歩6分
外観
間取り
区画図
その他
出入口
その他共用部分
周辺
前面道路