00件
最近見た物件
00件
検討リスト
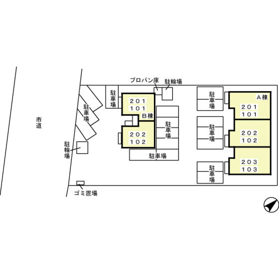
有限会社小林ランディックTOP > 物件一覧 > サウスコートB > 102
JR常磐線『藤代駅』徒歩3分の好立地。耐震性に優れた大和ハウス施工の賃貸物件。使い勝手の良い間取りに充実した設備です。追い焚き給湯、温水洗浄便座、TVドアホン、シャワー付洗面化粧台、カードキー、室内物干し、BSCSアンテナなど室内設備が大変充実。明るい内装に加え、南面リビング、バルコニーも南向きで陽当り・通風良好です。駐車場1台付無料、2台目月額3,300円です。

| 所在地 | 茨城県取手市藤代南1丁目 | ||
|---|---|---|---|
| 交通 | |||
| 間取り/詳細 |
1LDK LDK 11.0帖 1室/洋室 6.0帖 1室 |
面積/バルコニー面積 | 42.17㎡/- |
| 賃料 | 6.6万円 | 管理費・共益費 | 3,500円 |
| 敷金/礼金/保証金 | 0ヶ月/5万円/- | 償却/敷引 | -/- |
| 更新料 | 1ヶ月(新賃料) | 敷金積み増し | - |
| 権利金/雑費 | -/- | 駐車場/月額料金 | 空有(2台)/0円 2台目月額3,300円 |
| 保険加入/料金 | 無/- | 保険名/保険期間 | -/- |
| 保証人代行義務/利用料 | 必加入/ 毎月月額総支払賃料の3.4%+800円 | 保証会社 | その他 |
| 保証会社詳細 | 詳細はお問合せください | 向き | 南 |
| 築年月(築年数) | 2007年 3月 (築19年) | 契約期間 | 2年 |
| 種別/構造 | アパート/軽量鉄骨 | 部屋/所在階/階建 | 102/ 1階/ 2階建 |
| 総戸数 | - | 現況/入居可能日 | 居住中/2026年04月下旬予定 |
| 特優賃 | - | 取引態様/賃貸区分 | 一般媒介/一般 |
| 物件番号 | 41883815 | 取引条件の有効期限 | 2026年03月27日 |
| 設備条件 |
|
||
| 備考 | JR常磐線『藤代駅』徒歩3分の好立地。耐震性に優れた大和ハウス施工の賃貸物件。使い勝手の良い間取りに充実した設備です。追い焚き給湯、温水洗浄便座、TVドアホン、シャワー付洗面化粧台、カードキー、室内物干し、BSCSアンテナなど室内設備が大変充実。明るい内装に加え、南面リビング、バルコニーも南向きで陽当り・通風良好です。駐車場1台付無料、2台目月額3,300円です。セブンイレブン徒歩1分、ヤオコー、マツモトキヨシ徒歩3分 | ||
| 条件(その他) | 鍵交換代:1万6,500円 室内清掃費用:6万500円 | ||
| 取扱会社 |
|
||
| QRコード |
このQRコードを読み取ることで、スマホでも物件情報を確認できます。 |
||
※地図上に表示される物件の位置は付近住所に所在することを表すものであり、実際の物件所在地とは異なる場合がございます。
サウスコートBに関するこだわり条件から探す
取手市以外の市区町村から探す